ESTUFA DE LLENYA AMB FORN INCORPORAT LACUNZA – ALTEA

L’estufa ALTEA de Lacunza és un model de llenya amb forn incorporat, ideal per escalfar i cuinar alhora. Fabricada en acer amb interior de vermiculita, ofereix una potència de 7 kW i un rendiment del 87 %, amb baixes emissions i sistema de doble combustió que millora l’eficiència.

El seu forn d’acer inoxidable permet cuinar amb la calor del foc, mentre que el sistema de vidre net manté la porta transparent. Amb disseny robust i pràctic, l’ALTEA combina funcionalitat, estalvi energètic i l’encant tradicional del foc de llenya.

Descripció

L’estufa ALTEA de Lacunza és una estufa de llenya amb forn integrat, dissenyada per oferir confort tèrmic i funcionalitat en un únic aparell. Combina el disseny tradicional de les cuines de llenya amb les prestacions modernes d’una estufa d’alta eficiència, fent-la perfecta tant per a habitatges rurals com per a llars que busquen una calefacció sostenible i amb encant.

Fabricada en acer de gran resistència, l’ALTEA incorpora una cambra de combustió revestida amb vermiculita, material que afavoreix una combustió més neta i eficient. Amb una potència nominal de 7 kW i un rendiment del 87 %, és capaç d’escalfar estances mitjanes i grans amb un consum moderat de llenya. A més, el seu sistema de doble combustió aprofita els gasos generats en la primera combustió, millorant el rendiment i reduint les emissions contaminants.

Una de les grans particularitats d’aquest model és el seu forn superior en acer inoxidable, equipat amb bandeja i reixa metàl·lica, que permet preparar plats aprofitant la calor generada pel foc. Això converteix l’ALTEA en una opció ideal per als amants de la cuina tradicional i sostenible, ja que permet cuinar pa, guisats o rostits amb l’aroma autèntica del foc de llenya.

L’estufa disposa també d’un sistema de vidre net, que dirigeix un flux d’aire sobre el cristall per mantenir-lo lliure de sutge i permetre gaudir de la visió de les flames. La seva porta ampla facilita la càrrega de llenya de fins a 50 cm de llarg, mentre que el sistema d’accés per a neteja i manteniment simplifica la seva cura diària.

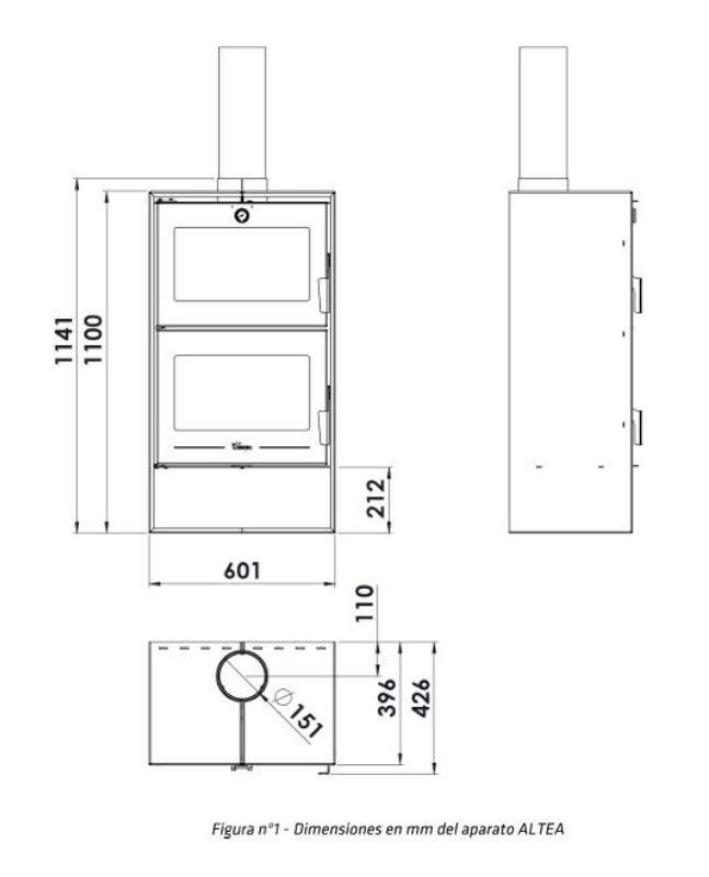
Amb unes dimensions aproximades de 60 cm d’amplada, 110 cm d’alçada i 40 cm de profunditat, i un pes de 126 kg, la Lacunza ALTEA ofereix una presència sòlida i elegant que s’integra fàcilment en entorns rústics o contemporanis. La sortida de fums de 150 mm garanteix una evacuació eficient i segura.

En conjunt, l’estufa ALTEA de Lacunza és una solució completa i versàtil que uneix eficiència energètica, cuina tradicional i disseny robust, permetent gaudir de la calidesa i la funcionalitat d’un autèntic foc de llenya amb les prestacions d’un producte modern i ecològic.

Productes relacionats